








.jpg)
GENTIAN
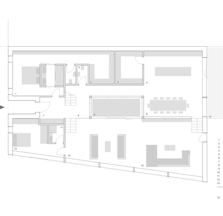
The Gentianis a contemporary family home, nestled in untouched Austrian nature. Conceived at the very edge of building regulations, it shows that only by pushing the limits of what is possible can hidden, overlooked potentials be released—creating a haven where modern living and nature quietly merge.
What happens next:
Reaching out is the first step toward shaping your own vision. From there, we listen, ask and explore together — clarifying ideas, defining priorities and uncovering potential.
Think of it as a personal navigation system: guiding you from the very first conversation, through concept and design, to the reality of a built space.
Every journey is different. Every path is tailored. But the destination is always the same: a project that feels unmistakably yours.
Get in touch

































